Проектирование и монтаж кухонь из гипсокартона
На кухне из гипсокартона можно достичь максимальной эргономичности, если на этапе проектирования учесть все потребности семьи в использовании техники и хранении утвари.

Кухня из гипсокартона своими руками – это возможность реализовать самые смелые дизайнерские идеи: этому материалу подвластны сложные изогнутые формы. Из ГКЛВ изготавливается мебель под встраиваемую технику, кухонные шкафчики и полки, барные стойки, столы – всё, что необходимо. Интересным и практичным решением станет сочетание открытых ниш и тумб с уголками для сидения, на нижнем уровне которых удобно хранить посуду. Если планируется решить кухню в стиле хай-тек, уместным будет многоуровневое освещение, которое можно организовать, оформив потолок с помощью всё того же гипсокартона.

В кухонных шкафчиках используются полки и фасады из ЛДСП, которые приобретаются отдельно и монтируются на брус. Готовые кухонные фасады имеют стандартные размеры, что необходимо учесть в проекте. Между парными дверками предусматривается зазор 5 мм. Если запланированы выдвижные ящики, для их установки необходим дополнительный профиль каркаса, выполненный из бруска, на который крепятся направляющие.

Каркас всех запланированных конструкций делается из металла.
Чтобы столешница была прочной, для ее изготовления обычно используется толстая бакелизированная фанера (от 12 мм). Можно приобрести готовую столешницу или облицевать гипсокартонную основу плиткой.
Монтаж всех гипсокартонных конструкций включает в себя несколько этапов :
- подготовка материала – для предотвращения развития грибка и плесени листы ГКЛВ грунтуются специальными составами;
- разметка гипсокартона согласно чертежу;
- создание металлического каркаса – на этом этапе в каркас вставляется деревянный брус для всех навесных конструкций, перемычками служат стоечные профили;
- обшивка каркаса вырезанными деталями из листов ГКЛВ деталями – для крепления используются саморезы;
- шпатлевание швов и последующая шлифовка.

Для монтажа подвесных полок и шкафчиков в местах соединения стен и саморезов обязательно используется деревянный брус. Если вы делаете мебель самостоятельно и затрудняетесь рассчитать нагрузку – лучше предпочесть громоздким навесным шкафчикам более легкие открытые полки. Когда монтаж завершен, остался последний этап – отделочные работы.
Как повесить картину на стену из гипсокартона?

В настоящее время одним из самых незаменимых материалов при ремонте считается гипсокартон. Его используют для выравнивания стен, создания перегородок и арок, монтажа многоуровневых потолков. Но рано или поздно ремонт заканчивается и можно приступать к декору стен.
Чтобы стены не казались голыми, многие украшают их картинами, зеркалами, гобеленами и другими элементами декора. И вот тут-то нас ждет не самый приятный сюрприз. Гипсокартон является довольно хрупким материалом, поэтому просто вбить гвозди в него не получится. Такой материал требует особого отношения.
И вот перед нами вырисовывается вопрос, как повесить картину на стену из гипсокартона?
Подготовительный этап
Перед тем, как повесить картину на стену из гипсокартона, нужно подготовиться:
- Как минимум, нужно подобрать для художественного полотна подходящее место, чтобы стена не казалась голой и унылой.
- После того, как вы определились с местоположением вашего элемента декора, необходимо расчистить ближайшую к ней территорию. Уберите с этого места все, что вам может помешать: календари, другие элементы декора.
- Сделайте пометку при помощи карандаша, ручки или мела.
Важно! Хорошо бы продумать это еще до конца ремонта. Тогда в момент сборки металлического каркаса можно вставить в конструкцию деревянный брус
Это поможет вам впоследствии без больших затруднений повесить не только декоративные панно, но и полки, зеркало или другую, достаточно тяжелую, вещь.
Способы крепежа
Стены из такого материала могут раскрошиться от удара молотка, поэтому способ того, как повесить картину на гипсокартон, нужно выбирать, исходя из массы предмета, который вы вешаете.Есть два основных способа, которыми можно воспользоваться:
- При помощи самоклеющегося крючка. Это, конечно, щадящий, но не самый надежный способ, ведь в любой момент крючок может отклеиться, даже если выбранное декоративное полотно не очень тяжелое.
- При помощи дюбелей, саморезов, анкеров. Тут понадобятся инструменты, например, шуруповерт. Понадобится также кронштейн, который будет вкручиваться в дюбель.
Вешаем легкие картины
При помощи самоклеящегося крючка можно повесить картины, чья масса не превышает 2 кг. Тогда шансы, что репродукция или фотография провесит долго, достаточно велики.
Важно! Не стоит вешать этим способом декоративные полотна в помещении с повышенной влажностью. Как повесить картину на гипсокартон при помощи крючков?
Как повесить картину на гипсокартон при помощи крючков?
- Для начала очистите поверхность стены от грязи. Можно воспользоваться жидкостью для мытья посуды или другим моющим средством. Затем стены необходимо промыть чистой водой и высушить. Поверхность должна быть сухой и чистой.
- Теперь поверхность нужно обезжирить. На месте, куда вы будете клеить крючок, не должно быть жирных пятен. Кроме того, поверхность должна быть ровной.
- Приклейте крючок в выбранном месте. Хорошенько надавите на него, чтобы он максимально приклеился к стене.
- Осталось только повесить полотно.
В продаже есть огромный выбор самых разнообразных крючков. Проследите, чтобы ваш крючок подходил под крепежные элементы вашего изделия.
Важно! Очень легкие предметы декора можно повесить на двухсторонний скотч
Вешаем тяжелую картину
Если вы не доверяете крючкам или у вас достаточно тяжелая картина, то нужно воспользоваться другим методом. Что мы должны сделать, чтобы повесить картину на стену из гипсокартона?
- Нужно определить, где находится металлический каркас. Это можно сделать при помощи магнита. Если у нас есть заготовка в виде деревянного бруса, то используем ее. Отмечаем место, где будет висеть изделие.
- Просверливаем отверстие нужного диаметра. Диаметр должен соответствовать крепежному элементу. Лучше всего крепить на специальные дюбели-бабочки. Они выпускаются специально для работы с гипсокартоном и отличаются тем, что при закручивании они образуют узор, который способен выдержать большой вес. Можно использовать анкерный болт, но тут нужно учесть один нюанс — демонтировать картину в случае крепления на анкер вряд ли удастся.
- В полученное отверстие вставляем дюбель. Край дюбеля должен идти вровень со стеной.
- В дюбель вставляем шуруп и закручиваем отверткой. Теперь на шуруп можно вешать даже тяжелое изделие.
материал
Используя любой из методов, вы и комнату украсите, и стену сохраните в целости и сохранности. Желаем вам удачных экспериментов в дизайне интерьера своего жилья!
Кухня своими руками из гипсокартона
В зависимости от стиля интерьера, гипсокартонная кухня может быть с дверками и без них. Дверки, как правило, используют заводские. Альтернатива – аккуратные занавески или открытые ниши, аля стиль кантри.Гипсокартонные кухни, облицованные плиткой, характерны для различных направлений стиля кантри.
Плитку для их облицовки выбирают естественных оттенков: белый, бежевый, терракотовый, коричневый, землистый. Также часто встречаются синий или зеленый. Плитка используется слегка шероховатая, что придает кухне некий налет старины, атмосферы домашнего уюта. Такие кухни – настоящий центр дома, где приятно не только готовить и принимать пищу, но и собраться всей семьей.
Вариативность гипсокартона позволяет забыть о таких нюансах, как неровные стены помещения, модули в изготовлении мебели, и сосредоточиться на функционале и форме исходя из удобства использования. Можно не только выполнить шкафы произвольного размера и конфикурации, но и сделать акцент например в виде очага или нетривиальной имитации колонн. Пластичность гипсокартонных конструкций позволяет выполнить кухню любой формы и конфигурации, объединенную композицию из шкафов и стола – острова или барной стойки. Использование плитки как для облицовки мебели, так и на полу и стенах создает удивительный эффект единства пространства.
Итак, кухня из гипсокартона представляет собой ряд ниш, ограничивающих пространство отдельных ящиков. Чаще гипсокартонную конструкцию выполняют только для нижнего ряда кухонного гарнитура, а верхний делают из навесных шкафчиков или открытых полок. Связано это, на мой взгляд, с тем, что шкафы из гипсокартона смотрятся несколько тяжеловесно.
Но здесь возможны варианты. Вот пример изящной кухни, где и верхняя часть – гипсокартонная конструкция.
Подготовка и расчет гипсокартона
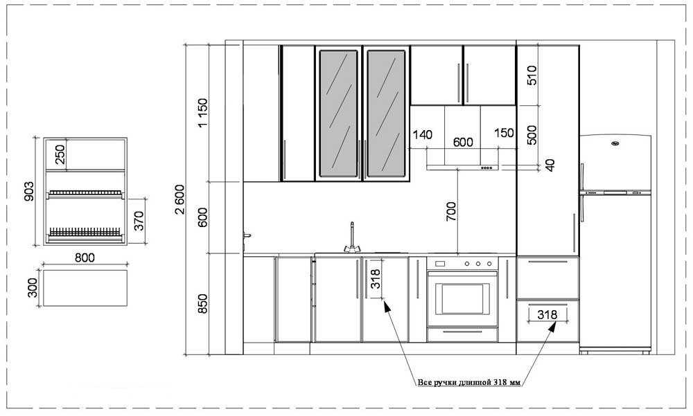
Без проекта кухонный гарнитур соорудить сложно. Чтобы точно определить формат мебельных заготовок, планируют предметы интерьера в масштабе. Для чертежа удобно использовать миллиметровку. Основные этапы проектирования:
- производится обмер кухни рулеткой;
- прорисовывается раскладка будущего гарнитура по элементам.
Стандартная ширина шкафчиков: 400, 600, 800 мм, глубина верхних шкафов 40 см, нижних – 60.
Современный дизайн сегодня открыт к экспериментам и даже очень приветствует их.
Для расчета количества материалов суммируют все длины, сумму умножают на 1,2, необходим небольшой запас. При раскрое направляющих для каркаса учитывают толщину листа. Для встраиваемой технике планируют навесные фасады или короба. Сразу же продумывают подсветку рабочей зоны, раковины, внутри шкафов.
Из гипсокартонных листов можно изготовить каркасы шкафов. В том числе изготавливаются и шкафы для встроенной техники, высокие шкафы-пеналы.
Монтаж кухни
Итак, наши изделия собраны, теперь пора приступать к монтажу кухни.
Настенный ряд
Настенный ряд шкафчиков в настоящее время принято навешивать не на обычные глухие петли, а на специальные мебельные петли с крючком, которые цепляются за металлическую планку-профиль, прикрученную к стене. Преимущество таких петель в том, что уже вывешенный на профиль шкафчик можно будет регулировать как по высоте, так и по глубине, что очень удобно, для выставления фасадов соседствующих шкафчиков в одной плоскости. 

Навешиваем шкафчики верхнего ряда и при помощи отвёртки регулируем петли вверх-вниз, вперёд-назад так, чтобы фасады соседствующих шкафчиков находились в одной плоскости, а сами шкафчики висели по уровню.

Нижний ряд
Плотно составляем шкафчики напольного ряда, регулируем их по высоте (закручивая/откручивая ножки) и стягиваем межсекционными болтами. 
Накрываем шкафчики столешницей и снизу через царги (поперечные планки) фиксируем столешницу саморезами. Можно прибегнуть также к помощи уголков.
На столешнице размечаем места для встраивания мойки и варочной поверхности, сверлим сквозное отверстие для того, чтобы можно было вставить лезвие лобзика и вырезаем куски столешницы.

Отверстия столешницы покрываем слоем силиконового герметика, а также наносим герметик на лицевую сторону столешницы по краю отверстия. Вставляем мойку и удаляем резиновым шпателем выдавленные излишки герметика. То же самое нужно проделать и для варочной поверхности, но только необходим термостойкий герметик.

Нижний ряд в сборе. Столешница на правом ряду плотно подогнана к окну.

Ну а вот как это выглядит всё вместе.
Монтаж кухонного потолка и барной стойки
Следующим этапом работ стал монтаж кухонного потолка и барной стойки. Кухня небольшая, пространства на ней не много, поэтому выбор был сделан именно в пользу барной стоечки, а не традиционного стола, место для которого оставалось только у входа комнату, что, согласитесь, вообще неудобно.
Специально для потолка было вырезано четыре детали из ДСП (того же, из которого собирались шкафчики). Две детали были сделаны с закруглением, которые должны будут стать завершением потолка. К стене детали крепились при помощи утолщённых уголков и саморезов, но основная масса потолка легла на шкафчики верхнего ряда. Ничего сложного.
Для барной стойки был вырезан кусок такой же эггеровской столешницы размерами 2000х400 мм, край которого тоже сделан с радиусом. Получилось, что стойка и элемент потолка над ней имеют идентичные размеры.

В столешнице сверлим отверстия (14х170) и сажаем их на скрытые полкодержатели, предварительно закреплённые по свободной стенке.

Обычно рекомендуемая высота установки барной стойки равна примерно 1100 мм от пола, но у меня вышло немного выше. Высота моей стойки была подогнана так, чтобы в свободное пространство между ней и напольным рядом смогла поместиться микроволновка. Получилось как-то так.

Чуть позже над стойкой и под ней появятся рейлинговые трубы с различными крючочками, баночками для специй и лоточками
Ну и завершила всю композицию стойка/потолок 50-я хромированная труба с держателем для бокалов и полочкой для фруктов. Под стойкой на трубе установил держатель с крючками для полотенец.

Пока ехали заказанные барные стулья, я немного апгрейдил стену над стойкой изготовив для неё самую дорогую картину, которую только мог.

Ну и вот что из этого, собственно, получилось. На своём месте уже рейлинговые трубы с крючками, плюс в потолок были врезаны светильники и добавлен ещё один держатель для бокалов.

Делаем столешницу на кухню своими руками из гипсокартона и керамической плитки
Данное изделие может быть выполнено в нескольких вариациях, самые распространенные: линейные, Г-образные и П-образные. Так как каждый сам будет разрабатывать принцип создания своими руками кухни из гипсокартона, то рассмотрим самый простейший пример – линейную столешницу.
Для создания этого предмета нам потребуется следующее:
- Направляющие профили.
- Гипсокартонные листы (толщина не менее 18 мм).
- Дрель и саморезы.
- Керамическая плитка.
- Клей для монтажа плитки.
- Затирка и шпатели (обычный и резиновый).
- Уровень, линейка, маркер.
Высота расположения и ширина рабочей поверхности может быть выбрана либо в соответствии со стандартами, либо индивидуально с учетом роста жильцов и их потребностей. Далее процесс создания столешницы из гипсокартона на кухню своими руками выглядит так:
1. На противоположенных стенах делаем по четыре отметки: в углах и на крайних точках будущего изделия. Ровность проверяем уровнем.
2. Опускаемся на десять сантиметром ниже и делаем еще четыре аналогичные отметки. Они обозначают места крепления четырех основных направляющих профиля.
3. При помощи прочных саморезов с шагом в 15-20 см крепим два профиля (один выше, другой ниже) к стене, которой будет примыкать столешница.
4. Два других элемента крепим к стенам концами, они будут краем столешницы.
5. Между верхними и нижними элементами через каждые 40 см монтируются 10 см стойки опоры из профиля.
6. Между верхними элементами, прилегающими к стене и теми, что располагаются с краю, монтируются поперечные соединения. Шаг между ними 40 см.
7. Поверхность конструкции и ее лицевую боковую сторону обшиваем гипсокартоном.
8. Отмечаем места, в которых будут монтироваться мойка и плита, вырезаем отверстия.
9. Все оставшуюся поверхность облицовываем плиткой. Швы заделываем специальной затиркой, которая выдерживает частое мытье.
Процесс создания всех этих элементов достаточно прост и напоминает монтирование стен из этого материала
Стоит обратить внимание на количество элементов, которые будут придавать жесткость и прочность всей конструкции. Читайте в нашей следующей статье сравнение кухонного гарнитура из дерева и кухонь под дерево
После этого загрунтовываются и зашпаклевываются все стыки, поверх прокладывается армировочная лента. После полного высыхания следует второй слой, и после его высыхания стыки необходимо зачистить. И затем наносится последний слой шпаклевки.
- ГКЛ;
- Профили;
- Саморезы;
- Дюбели;
- Перфоратор;
- Уровень ;
- Шуруповерт;
- Герметик;
- Краска;
- Шпаклевка;
- Шпатель;
- Нож по гипсокартону;
- Кисти и валик.
Недурно иметь чертеж будущего предмета мебели– так, скорость пойдет быстрее, размеры не требуется выверять каждый раз, заготовки делают заранее. Монтаж: Вам негде разместить кухонную утварь или комнатные растения? Не хватает места для кулинарных книг или банок со специями? Выход есть – кухонная арка-стеллаж сыграет не только огромную роль в интерьере, но и достаточно функциональна для любых запросов.
Суть проста – свод и стена из гипсокартона с полками.
Мебель для ванной
Мебель из гипсокартона для санузла – отличная альтернатива пластиковым вариантам или дорогой отделке из натуральных материалов. Даже ванная комната, которая в силу повышенной влажности является специфичным помещением, может стать объектом отделки гипсокартоном. Главное – использовать оцинкованный каркас и влагостойкий гипсокартон (ГКЛВ). Можно спроектировать и смонтировать тумбы с полками под мойку и шкафчики для ванных принадлежностей. В изготовлении мебели для ванной используется стандартный принцип сборки каркаса с этапами обшивки и отделки. Чтобы все компоненты ванной комнаты противостояли влаге, обработайте их защитными покрытиями, а влагостойкие листы ГКЛВ дополнительно отделайте плиткой или декоративной штукатуркой.
Гипсокартон как универсальный и легкий в обработке материал дает большие возможности дизайнерам для творчества, а также сэкономит семейный бюджет
При покупке ГКЛ обратите внимание, где и у кого вы приобретаете отделочный материал. Например, если гипсокартонные листы долго пролежали на складе, ни о какой влагостойкости тут говорить не приходится
Если цена слишком низкая или действует акция, помните, что бесплатный сыр только в мышеловке. Такой отделочный материал, как гипсокартон – поможет вам создать уникальный интерьер своими руками, который станет продолжением вашей индивидуальности. Каким образом вы оформите свой дом – зависит исключительно от вашей фантазии и предпочтений, а с гипсокартоном финансовая составляющая не должна быть проблемой.


О том, как сделать столешницу из гипсокартона под раковину, смотрите в следующем видео.
Преимущества отделки кухни гипсокартоном
Отделка кухни гипсокартоном имеет такие преимущества:
- Материал имеет доступную цену.
- Возможность произвести монтаж своими руками, так как технология довольно проста.
- В процессе проведения монтажных работ образуется минимум пыли и грязи.
- Высокая скорость монтажных работ и быстрое получение готового результата.
- Получение идеально ровных поверхностей.
- Экологически чистый материал.
- Возможность воплощения многочисленных дизайнерских решений.
- Конструкции имеют малый вес.
- Хорошая ремонтопригодность.
- Совместимость со многими отделочными материалами.
Этапы монтажа гипсокартонных конструкций
Монтаж гипсокартонных конструкций состоит из нескольких этапов, основой которых является планирование и чертеж.
Все остальное дело техники. Согласно составленному чертежу монтируется каркас мебели или обрешетка для стен и все покрывается гипсокартоном. Имея базовые навыки и соблюдая советы профессионалов, можно сделать любой дизайнерский шедевр.
Отделка стен на кухне гипсокартоном
Монтаж гипсокартонных листов может производиться двумя способами – каркасным и бескаркасным. Оба способа хороши, но каркасный способ используется чаще благодаря тому, что полученный промежуток позволяет замаскировать любые неровности стеновых поверхностей и скрыть всевозможные коммуникации.
Однако в малогабаритных кухнях лучше все же использовать бескаркасное крепление листов, которое выровняет стены и займет минимум свободного пространства.
Профессиональные тонкости монтажа гипсокартона на стены
Этапы отделки стен каркасным способом:
- Выполняется монтаж направляющего профиля.
- Крепятся подвесы с проверкой их на ровность.
- Подготавливается и по необходимости раскраивается материал.
- Производится крепление гипсокартонного полотна к каркасу.
- Проводится финишная отделка поверхности.
Этапы бескаркасной обшивки стен:
- Очищается и обезжиривается поверхность стен.
- Грунтуется.
- Подготавливается полотно.
- Приклеиваются листы специальным клеем.
- Заделываются швы, и проводится заключительная отделка.
Выбираем дизайн комода купе
Перед началом монтажа нужно определиться с некоторыми важными моментами. Первый из них – выбор места. Это индивидуальное решение каждого хозяина дома. Когда место определено, можно сделать чертеж стен и придумать месторасположение самого комода.
На полу, потолке и стенах размечаем линии каркаса.
Чертеж можно выполнить на обычном листке бумаге или использовать уже готовый. Однако последний вариант более сложный, ведь готовый план работ должен идеально подойти под параметры вашей квартиры.
Не прибегая к помощи профессионала, каждый желающий, приложив усилия, сможет сделать шкаф из гипсокартона своими руками.
Дабы создать план, нужно также ознакомиться с основными разновидностями такой конструкции.
Гипсокартон – это современный материал, работать с которым под силу каждому.
Шкафчик из ГКЛ может быть разных видов:
- угловым;
- линейным;
- встроенным;
- купе.
Одной из составляющих ГКЛ (гипсокартонный лист) является гипс.
Угловая конструкция идеально подойдет для небольшого помещения. Она позволит сэкономить пространство. Линейный шкафчик с полками – универсальный. Его можно установить в любой комнате дома.
За прочность материала отвечает картонная оболочка, оптимизирующая технические характеристики плиты.
Если же помещение имеет ниши, то разумнее сделать встроенный шкаф с подсветкой большого размера. Например, его можно использовать в качестве гардеробной. А комод купе с полками станет отличным решением при недостатке места для хранения вещей. В нем можно разместить не только одежду, но и книги, технику или обувь. Купе – это лучшее решение для квартиры небольшого размера.
Это экологически чистый материал, не содержащий вредных элементов и обладающий кислотностью приближенной к коже человека.
Также следует заранее определиться с особенностями комода. Он может иметь открытые и закрытые полки. Шкаф из гипсокартона с закрытыми полками максимально практичный, так как в нем можно хранить любые принадлежности, но соорудить такой каркас будет сложнее.
Металлический профиль легче обрабатывать.
Крепеж вырезанных по размеру гипсокартонных плит осуществляем на саморезы гипрок-металл или гипрок-дерево в зависимости от выбранного материала каркаса.
Готовый шкаф из гипсокартона в конечном результате может выглядеть по-разному.
Ниша из гипсокартона под телевизор в гостиной
Представить современную гостиную без большого телевизора почти невозможно. Даже строгие противники телевидения не отказывают себе в удовольствии выводить на экран любимые фильмы или клипы.
А вот найти удобное место даже в просторной гостиной не всегда легко, ведь в ней еще нужно уместить мягкий уголок, столик, шкафы, рабочую зону, полки и книги, музыкальные инструменты и массу других мелочей. Поэтому на первый план выходят современные эргономичные конструкции.
Гипсокартонные ниши легко заменят собой старые неповоротливые стенки. А еще – помогут грамотно организовать пространство, ведь это сильный инструмент для визуального зонирования комнаты.
Плюсы и минусы стеллажа
К преимуществам использования этого предмета мебели можно отнести:
- удобство расположения предметов;
- удобство поддержания порядка;
- доступную стоимость, благодаря использованию минимума материалов;
- возможность создания красивого интерьера при помощи посуды и других оригинальных мелочей;
- отсутствие створок (экономит пространство в небольших помещениях);
- можно выбирать конструкции любой конфигурации.
По сути, это системы хранения баночек для приправ, бутылок, круп, посуды, полотенец и предметов для уборки.
К недостаткам использования относят:
- вместительность полок меньше, чем у шкафчиков закрытого типа;
- полки конструкций украсят только презентабельные сервизы, старую посуду придется спрятать;
- нет защиты от пыли;
- дети и животные могут легко достать все вещи, которые расположены на открытом стеллаже.
Изначально стеллажи были задуманы как мебель для разгрузки рабочих поверхностей.
Монтаж каркаса мебели из гипсокартона для кухни
Осмотрите пространство кухни и определите расположение новой мебели из гипсокартона. Если в кухне есть ниши – можно их удачно использовать. По вашему желанию, в кухне можно соорудить отдельные элементы кухонной мебели – тумбы, пеналы, шкафчики – буфеты или сделать полноценный кухонный уголок.

- Начните работы с разметки по полу и стенам, нанесите мелом при помощи длинной ровной рейки линии на места крепления профильных планок для гипсокартона. Выберите профиль для направляющих и стоек с толщиной оцинкованного металла 3- 4 мм. Понадобится и деревянный брус соответствующего размера, для заполнения “П”- образного профиля. Брус должен быть хорошо просушен, так как его может впоследствии покрутить. Выберите водостойкий гипсокартон – толщиной от 6.5 до 12.5 мм, он наиболее подойдет к кухонной атмосфере.
- Крепятся профиля к стенам и полу саморезами и пластиковыми дюбелями. В местах соприкосновения профилей с полом и стенами, крепится амортизирующая прокладка, которая гасит вероятные вибрации здания. Между собой направляющий и стоечный профиль скрепляются маленькими шурупами “клопами”. Для арочных и плавных изгибов подрезаются боковые бортики оцинкованных профилей ножницами по металлу. Шаг надреза для нестандартной конфигурации в зависимости от градуса изгиба, составляет от 0.5 см до 5 см. Иногда требуется подрезать выступающие углы в виде трапеции.
- Горизонтальные направляющие для полок, на которых планируете расположить увесистые предметы или бытовые приборы – к примеру: стопки керамической посуды, телевизор или микроволновую печь, желательно укрепить профилем из более толстого металла, и обязательно вставить в середину деревянный брус.
Как декорировать кухню из гипсокартона
Кухня из гипсокартона декорируется исходя из конструктивных особенностей мебели: ее можно решить в совершенно несхожих стилях – от хай-тек до кантри. Первый вариант будет уместен на кухнях с барной стойкой и многоуровневым подвесным потолком. Для этого стиля предпочтительны фасады с идеальной глянцевой поверхностью и хромированной фурнитурой. Остальные поверхности должны быть окрашены и тщательно отполированы.
Для кухни, сделанной своими руками, идеально подойдет декор в различных разновидностях стиля кантри (прованс, средиземноморское, скандинавское кантри, шале). К этому особенно располагают открытые полки, арки и ниши. Проявив фантазию, вы сможете создать на своей кухне атмосферу уюта и непринужденности и придать ей поистине средиземноморский колорит. Достижению этого эффекта поможет имитация колонн, которая очень выигрышно смотрится в просторном помещении.

Гипсокартон имеет одну особенность, которая открывает перед декоратором интересные возможности – этот материал можно облицовывать плиткой и украшать мозаикой. Широкое использование плитки – характерная особенность культуры Средиземноморья и весьма практичное решение для кухни. Совсем не обязательно использовать плитку только для кухонного фартука и пола – этим материалом можно облицевать рабочие поверхности шкафчиков, столешницу и даже боковые поверхности мебели, а на торцах полок будет эффектно смотреться мозаика.
Облицованная столешница – нетривиальный вариант, который обязательно привлечет внимание гостей. Еще один акцент можно сделать на имитации очага, роль которого сыграет встроенная плита и выполненный из гипсокартона стилизованный короб под вытяжку
Если плитка подобрана правильно – вы получите гармоничный и нестандартный интерьер.

Для облицовки мебели лучше выбирать небольшую кафельную плитку, оптимальный размер – 10 х 10 см. Удачным дополнением, которое позволит избежать монотонности, станут барельефные панно, декоративные вставки, а также бордюры, которыми можно оформить торцы полок и столешницы.
Искусственно состаренная плитка – матовая и шероховатая – придаст вашему интерьеру обаяние старины, а плитка с принтами традиционного португальского орнамента, издавна украшавшего изразцы (азулежу) будет актуальным и стильным решением.

Не обязательно облицовывать плиткой все открытые глазу гипсокартонные поверхности: чередование облицованных и окрашенных плоскостей придаст интерьеру ритмичность. Гипсокартон грунтуют, красят акрилом подходящего цвета и покрывают лаком.
Для интерьера кухни в стиле средиземноморского кантри подойдут естественные природные оттенки: бежевый, молочный, оливковый, хаки, темно-синий, баклажановый, терракотовый, песочный, охристый, коричневый, землисто-серый, шоколадный.
Завершить декор помещения поможет текстиль. Для оформления арок, открытых ниш и полок в стиле кантри как нельзя лучше подойдут занавески из натуральных материалов – хлопка и льна, а на столе будет уместна длинная скатерть. Если плитка пестрая – лучше отдать предпочтение однотонным вариантам текстиля.

Осталось дополнить интерьер интересными деталями – керамическими горшками, медной посудой, ручной кофемолкой, колоритными салфетками и ухватками, деревянными ложками – и можно наслаждаться уютом.
Если вы оформили свою кухню из гипсокартона со всей тщательностью и придерживались выбранного стиля в каждой детали – она станет любимым местом в доме, где будет собираться вся семья.
Видео


















































